Großzügige Arbeitsfläche mit Ladenpotenzial perfekt für Büro, Atelier oder Galerie

70193 Stuttgart Stuttgart-West, Bürofläche zur Miete

Kontaktdaten

Alexander Passiepen, M.Maile Immobilien GmbH

Objektdaten

  • Objekt-ID
    1129
  • Objekttypen
    Büro/Praxis, Bürofläche
  • Adresse
    Rosenbergstraße 104
    70193 Stuttgart Stuttgart-West
  • Bürofläche ca.
    90 m²
  • Heizungsart
    Fernwärme
  • Zustand
    gepflegt
  • Ausstattung
    Standard
  • Bauweise
    Massiv
  • Verfügbar ab
    01.05.2026
  • Kaution
    4.470,00 EUR
  • Kaltmiete
    1.490,00 EUR
  • Nebenkosten
    370,00 EUR
  • Heizkosten
    in der Warmmiete enthalten
  • Warmmiete
    1.860,00 EUR (Heizkosten enthalten)

Ausstattung / Merkmale

  • ✓ Denkmalgeschützt
  • ✓ Estrichboden
  • ✓ Massivbauweise

Energieausweis

  • Energieausweis
    nicht erforderlich

Objekt­beschreibung

Beschreibung

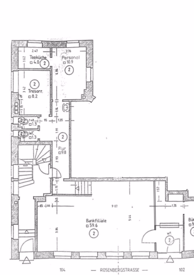
Diese außergewöhnliche Gewerbeeinheit befindet sich in attraktiver Lage der Rosenbergstraße 104 in Stuttgart-West und ist Teil eines repräsentativen, denkmalgeschützten Gebäudes. Die Einheit wurde ehemals als Bankfiliale genutzt und überzeugt heute durch ihre großzügige Raumstruktur, hervorragende Lichtverhältnisse und äußerst flexible Nutzungsmöglichkeiten.

Der Zugang erfolgt ebenerdig. Beim Betreten der Einheit öffnet sich ein großzügiger, offener Hauptraum mit sehr guter Raumhöhe und großen Fensterflächen, die für ein helles und einladendes Ambiente sorgen. Dieser Bereich eignet sich ideal als Großraumbüro, Galerie, Atelier oder Ausstellungsfläche. Ebenso denkbar sind Nutzungen durch Architekten, Planungsbüros, Agenturen oder ruhige gewerbliche Konzepte wie Kosmetik-, Massage- oder Behandlungsangebote.

  • Achtung+ Eine gastronomische Nutzung ist ausdrücklich nicht vorgesehen.

Über wenige Stufen gelangt man in den hinteren Bereich der Einheit. Hier befindet sich ein offen gestalteter Flurbereich, der gleichzeitig als Teeküche dient und zentral alle weiteren Räume erschließt. Von diesem Bereich aus erreicht man zwei separate Sanitäreinheiten für Damen und Herren.

Ebenfalls angrenzend befinden sich zwei weitere abgeschlossene Räume, die flexibel als Büroräume, Behandlungs- oder Praxisräume genutzt werden können. Auch eine Nutzung als Labor oder für andere spezialisierte, nicht störende gewerbliche Zwecke ist grundsätzlich vorstellbar.

Die Verbindung aus offenem, repräsentativem Hauptraum und funktional gegliedertem Nebenbereich bietet ideale Voraussetzungen für unterschiedlichste gewerbliche Konzepte. Große Fensterflächen, die sehr gute Belichtung sowie der besondere Charakter des denkmalgeschützten Gebäudes verleihen der Einheit eine hochwertige und zugleich individuelle Ausstrahlung.

Ausstattung

Ausstattung:

  • Hohe Decken
  • Hausmeisterservice (übernimmt Kehrwoche)
  • 2 getrennte WCs.
  • Moderne Fenster
  • Die Gewerbeeinheit wird im renovierten Zustand übergeben.

Sonstiges

Wir haben eine Mindest-Mietdauer von 24 Monaten mit einer Kündigungsfrist von 6 Monaten.

Es ist eine jährliche Staffelmiete vorgesehen ca. 2 %

Lage

Das Büro/Atelier/Galerie oder Ladenfläche befindet sich in der begehrten Rosenbergstraße mitten im lebendigen Herzen von Stuttgart-West. Dieses charmante Viertel zeichnet sich durch seine perfekte Mischung aus urbanem Flair und ruhiger Wohnatmosphäre aus.

In unmittelbarer Nähe finden Sie zahlreiche Cafés, Restaurants und Einkaufsmöglichkeiten, die für ein vielseitiges Angebot sorgen.
Die Anbindung an den öffentlichen Nahverkehr ist hervorragend: Die U-Bahn-Station Hölderlinplatz sowie mehrere Bushaltestellen befinden sich in direkter Umgebung, wodurch Sie die Innenstadt und andere Stadtteile schnell und bequem erreichen.

Direktanfrage

* Pflichtangaben
 SSL-verschlüsselt