Vielseitige Verkaufs- und Ladenfläche in begehrter Lage von Stuttgart-West

70193 Stuttgart Stuttgart-West, Ausstellungsfläche zur Miete

Kontaktdaten

Alexander Passiepen, M.Maile Immobilien GmbH

Objektdaten

  • Objekt-ID
    1165
  • Objekttypen
    Ausstellungsfläche, Einzelhandel
  • Adresse
    Rosenbergstraße 104
    70193 Stuttgart Stuttgart-West
  • Gesamtfläche ca.
    90 m²
  • Zimmer
    3
  • Heizungsart
    Zentralheizung, Fernwärme
  • Zustand
    gepflegt
  • Ausstattung
    Standard
  • Verfügbar ab
    01.05.2026
  • Kaution
    4.470,00 EUR
  • Kaltmiete
    1.490,00 EUR
  • Nebenkosten
    370,00 EUR
  • Heizkosten
    in der Warmmiete enthalten
  • Warmmiete
    1.860,00 EUR (Heizkosten enthalten)

Ausstattung / Merkmale

  • ✓ Estrichboden

Energieausweis

  • Energieausweis
    nicht erforderlich

Objekt­beschreibung

Beschreibung

Diese außergewöhnliche Gewerbeeinheit befindet sich in attraktiver Lage der Rosenbergstraße 104 in Stuttgart-West und ist Teil eines repräsentativen, denkmalgeschützten Gebäudes. Die Fläche eignet sich insbesondere als Ladenfläche, Einzelhandelsgeschäft oder Fachgeschäft mit repräsentativer Präsentations- und Verkaufsfläche. Auch ein Labor mit angeschlossener Verkaufsfläche oder ein spezialisiertes, beratungsintensives Geschäftskonzept lässt sich hier hervorragend realisieren.

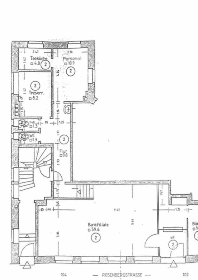
Die Einheit wurde ehemals als Bankfiliale genutzt und überzeugt heute durch ihre großzügige Raumstruktur, hervorragende Lichtverhältnisse sowie äußerst flexible Nutzungsmöglichkeiten.

Der Zugang erfolgt ebenerdig. Beim Betreten öffnet sich ein großzügiger, offener Hauptraum mit sehr guter Raumhöhe und großen Fensterflächen, die für ein helles, einladendes Ambiente sorgen. Dieser Bereich bietet ideale Voraussetzungen für eine ansprechende Warenpräsentation, Kundenberatung oder Verkaufsfläche mit hochwertigem Erscheinungsbild.

Darüber hinaus sind selbstverständlich auch Nutzungen als Büro, Atelier, Galerie oder Ausstellungsfläche möglich. Ebenso denkbar sind Konzepte von Architekten, Planungsbüros, Agenturen oder ruhige gewerbliche Nutzungen wie Kosmetik-, Massage- oder Behandlungsangebote.

Wichtiger Hinweis: Eine gastronomische Nutzung ist ausdrücklich nicht vorgesehen.

Über wenige Stufen gelangt man in den hinteren Bereich der Einheit. Hier befindet sich ein offen gestalteter Flurbereich, der zugleich als Teeküche dient und zentral alle weiteren Räume erschließt. Von hier aus erreicht man zwei separate Sanitäreinheiten für Damen und Herren.

Angrenzend befinden sich zwei weitere abgeschlossene Räume, die flexibel als Büro-, Praxis-, Behandlungs- oder Laborräume genutzt werden können. Auch spezialisierte, nicht störende gewerbliche Nutzungen sind grundsätzlich vorstellbar.

Die Kombination aus repräsentativer Laden- bzw. Verkaufsfläche im vorderen Bereich und funktional gegliederten Nebenräumen bietet ideale Voraussetzungen für unterschiedlichste gewerbliche Konzepte – vom klassischen Einzelhandelsgeschäft oder Fachgeschäft über Labor mit Verkaufsbereich bis hin zur Büro- oder Praxisnutzung. Große Fensterflächen, die hervorragende Belichtung sowie der besondere Charakter des denkmalgeschützten Gebäudes verleihen der Einheit eine hochwertige und zugleich individuelle Ausstrahlung.

Ausstattung

Ausstattung:

  • Hohe Decken
  • Hausmeisterservice (übernimmt Kehrwoche)
  • 2 getrennte WCs.
  • Moderne Fenster
  • Die Gewerbeeinheit wird im renovierten Zustand übergeben.

Sonstiges

Wir haben eine Mindest-Mietdauer von 24 Monaten mit einer Kündigungsfrist von 6 Monaten.

Es ist eine jährliche Staffelmiete vorgesehen ca. 2 %

Lage

Die Ladenfläche / Einzelhandelsfläche / das Fachgeschäft mit Labor- oder Büronutzung befindet sich in der begehrten Rosenbergstraße im lebendigen Herzen von Stuttgart-West. Dieses charmante Viertel überzeugt durch seine ideale Kombination aus urbaner Lebendigkeit, gewachsener Struktur und angenehmer Wohn- und Arbeitsatmosphäre.

Die Einheit eignet sich hervorragend als Ladengeschäft, Einzelhandelsfläche, Fachgeschäft oder spezialisiertes Geschäftskonzept – beispielsweise mit integrierter Laborfläche, Beratungsbereich oder ergänzender Büro- bzw. Atelierstruktur. Auch eine Nutzung als Galerie oder klassisches Büro ist selbstverständlich möglich.

In unmittelbarer Umgebung befinden sich zahlreiche Cafés, Restaurants sowie vielfältige Einkaufsmöglichkeiten, die für eine hohe Kundenfrequenz und ein attraktives Umfeld sorgen. Die Mischung aus Gewerbe, Dienstleistung und hochwertigem Wohnen macht diesen Standort besonders interessant für inhabergeführte Konzepte, spezialisierte Fachgeschäfte oder beratungsintensive Nutzungen.

Die Anbindung an den öffentlichen Nahverkehr ist hervorragend: Die U-Bahn-Station Hölderlinplatz sowie mehrere Bushaltestellen liegen in direkter Nähe. Dadurch sind die Stuttgarter Innenstadt und weitere Stadtteile schnell und bequem erreichbar – sowohl für Kunden als auch für Mitarbeitende.

Direktanfrage

* Pflichtangaben
 SSL-verschlüsselt