18. Stock und Balkon nach Süden! Attraktive 3,5-Zimmer Gelegenheit im Asemwald!

70599 Stuttgart, Etagenwohnung zum Kauf

Video

Referenz

Dieses Objekt wurde bereits erfolgreich vermittelt.

Objekt­beschreibung

Beschreibung

Willkommen im 18. Obergeschoss des Wohnkomplexes Im Asemwald – einer Lage, die ihresgleichen sucht. Die Wohnung überzeugt nicht nur durch ihre durchdachte Raumaufteilung, sondern vor allem durch den atemberaubenden Blick: Vom großzügigen Balkon und den großen Fensterfronten genießen Sie einen unverbaubaren Fernblick über die grüne Filderebene bis hin zur Schwäbischen Alb – ein echtes Highlight für Natur- und Weitblickliebhaber.

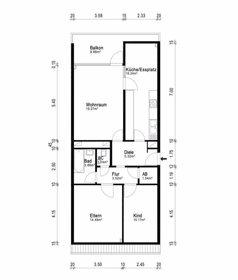
Der zentrale Eingangsbereich der Wohnung führt in sämtliche Räume. Direkt angrenzend befindet sich die Küche mit offenem Essbereich sowie das helle Wohnzimmer mit Zugang zum Balkon. Die Glasfront sorgt für viel Tageslicht und unterstreicht das großzügige Wohngefühl.
Das Schlafzimmer bietet einen weiteren schönen Ausblick – mit Sicht bis hin zum Stuttgarter Fernsehturm. Ein weiteres Zimmer eignet sich ideal als Kinder-, Gäste- oder Arbeitszimmer. Das Badezimmer ist mit einer Badewanne ausgestattet, WC und Abstellraum sind separat und praktisch im Grundriss untergebracht.

Die Wohnung ist bequem barrierefrei per Aufzug erreichbar und bietet urbanes Wohnen in naturnaher Umgebung – ideal für Eigennutzer oder Kapitalanleger.

Ausstattung

Die Wohnung ist im Wohn- und Küchenbereich, im Badezimmer sowie im separaten WC mit pflegeleichten Fliesen ausgestattet. Die Schlafräume verfügen über klassischen Parkettboden.

Insgesamt befindet sich die Wohnung in einem renovierungsbedürftigen Zustand. Die Elektrik stammt noch aus dem Baujahr, und auch die Küche entspricht nicht mehr dem heutigen Standard und sollte erneuert werden. Das Badezimmer sowie das separate WC sind ebenfalls renovierungsbedürftig und bieten somit Gestaltungsspielraum für eine individuelle Modernisierung.

Ein klarer Pluspunkt: Die Aufzüge im Gebäudekomplex wurden im Jahr 2022 vollständig modernisiert und ermöglichen einen komfortablen und zuverlässigen Zugang bis ins 18. Obergeschoss.

Zur Wohnung gehört ein separates Kellerabteil. Im Erdgeschoss stehen den Bewohnern praktische Gemeinschaftsräume zur Verfügung, darunter ein Trockenraum, ein Fahrradkeller sowie Waschmaschinen mit Münzeinwurf zur gemeinschaftlichen Nutzung.

Ein besonderes Plus ist das großzügige Foyer im Eingangsbereich des Hauses – ein angenehmer Treffpunkt für Nachbarn oder als Wartebereich für Gäste, der das gemeinschaftliche Miteinander im Haus fördert.

Ein separater, fester Tiefgaragenstellplatz gehört ebenfalls zur Wohnung. Der Stellplatz ist über einen eigenen Zugang erreichbar und bietet somit zusätzlichen Komfort und Sicherheit.

Sonstiges

Im Folgenden finden Sie eine Übersicht der relevanten Kosten- und Rücklageninformationen, die für Käufer und Eigentümer wichtig sind. Die Beträge können Sie einfach ergänzen.

Hausgeld (umlegbar): ca. 301,00 Euro
Hausgeld (nicht umlegbar): 44,00 Euro
Rücklagen (Wohnung): 369,00 Euro

Rücklagen (gesamt): 2.583.461,27 Euro Stand 31.12.2024

Bei der Preisfindung wurde der renovierungsbedürftige Zustand der Wohnung ebenso berücksichtigt wie die aktuell erhöhten Rücklagen, die gezielt für zukünftige Instandhaltungen aufgebaut werden. Deshalb bietet sich die Wohnung zu einem attraktiven Preis mit fairer Kalkulation an – alle Faktoren sind bereits eingerechnet.

Lage

Die Wohnstadt Asemwald liegt ruhig und naturnah im Süden Stuttgarts, direkt am Waldrand der Filderebene. Die Lage bietet ideale Bedingungen für Eigennutzer und Kapitalanleger: umgeben von weitläufigen Grünflächen mit besten Möglichkeiten zum Joggen, Spazieren oder Radfahren.

Die Infrastruktur ist hervorragend: Ein Edeka-Supermarkt, Bäckerei, Apotheke, Ärzte, Friseur sowie weitere Geschäfte des täglichen Bedarfs befinden sich direkt im Gebäudekomplex. Ein echtes Highlight ist das Panoramabad im 20. Stock mit Schwimmbecken, Sauna und Sonnenterrasse – exklusiv für Bewohner und öffentlich zugänglich. Tennisplätze, ein Fitnessstudio und Spielplätze ergänzen das Freizeitangebot.

Auch verkehrstechnisch ist Asemwald bestens angebunden: Die Buslinien 74 und 76 verbinden den Standort mit Degerloch, Möhringen und Plieningen. Der Flughafen Stuttgart und die A8 sind in wenigen Minuten mit dem Auto erreichbar.

Eine Wohnlage, die Ruhe, Natur und städtische Infrastruktur ideal vereint.

Weitere Infos unter: https://asemwald.de