Versatile and very well maintained 1-3 family house with unobstructed views.

78098 Triberg, Detached house for sale

Video

Contact details

Michael Maile, M.Maile Immobilien GmbH

Object data

  • Property ID
    1020
  • Property Type
    Detached house, House
  • Address
    Rohrbacherstr 16
    78098 Triberg
  • Floors in the house
    4
  • Units
    3
  • Living area approx.
    206 m²
  • Plot approx.
    648 m²
  • Rooms
    9
  • Bathrooms
    3
  • Kitchen
    Built-in kitchen
  • Heating type
    Central heating
  • Year of construction
    1969
  • State
    Well-kept
  • Architecture
    Solid construction
  • Outdoor car parking spaces
    2
  • Garage parking spaces
    2 parking spots
  • Available from
    01.12.2025
  • Buyer's commission
    3.57 % incl. 19 % VAT.
  • Purchase Price
    349,000 EUR

Features

  • ✓ Basement
  • ✓ Bathtub
  • ✓ Built-in kitchen
  • ✓ Daylight bathroom
  • ✓ Garage
  • ✓ Granny flat
  • ✓ Laminate flooring
  • ✓ Massive constructions
  • ✓ Outdoor parking space
  • ✓ Parquet floor
  • ✓ Saddelback Roof
  • ✓ Sauna
  • ✓ Shower
  • ✓ Store room
  • ✓ Tiled floor
  • ✓ Washing/drying room

Energy certificate

  • Energy certificate type
    Consumption pass
  • Date of issue
    20.03.2024
  • Valid until
    03-2034
  • Year of construction according to energy certificate
    1989
  • Primary energy source
    Oil
  • Final energy consumption
    84.40 kWh/(m²·a)
  • Hot water included
    Yes
  • Energy efficiency class
    C
0 25 50 75 100 125 150 175 200 225 250+ H G F E D C B A A+ H G F E D C B A A+ Total energy consumption 84.40 kWh/(m²·a)

Property description

Description

Welcome to this very well-kept, spacious and individually divisible house with unobstructed views.
Divided into three independent apartments, each with a separate entrance, the house offers many possibilities. It is suitable as
multi-generational or vacation home, for living and working under one roof or even as a classic detached house by reusing the original connection between the floors.

The areas are divided as follows:
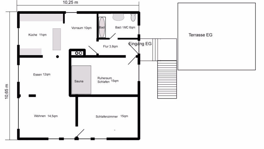
Ground floor: approx. 90 sqm, large living/dining area with kitchen, 2 bedrooms, bathroom, access to the large terrace, further terrace on garages conceivable.
First floor: approx. 80sqm, large living/dining area, 2 bedrooms, kitchen, bathroom
Lower first floor: approx. 42sqm, 2 rooms, kitchen, bathroom, terrace
All three units are available for owner-occupation or rental.

In addition, there are dry and easily usable cellar rooms and a storage room above the top floor apartment.

In front of the house there is a double garage and 3 parking spaces.

Equipment

The entire house was rebuilt and completely renovated in 1988. A further renovation was carried out in 1993. Overall, the building is in an extremely well-kept and practically ready-to-move-in condition.

The oil central heating with low-temperature boiler was installed in 1989 and still delivers very good values. A gas connection was installed in 2021, so you are free to choose your own energy source.
Fast internet is guaranteed by the existing fiber optic connection.

Further features:
Parquet and tiled floors on the ground floor and first floor.
Tiles and laminate in the lower first floor.
Fitted kitchens on the NP and ground floor.
Hemholz sauna on the ground floor.

Miscellaneous

Take a look at the viewing video for a solid first impression!

Have we piqued your interest? Then we look forward to receiving your detailed inquiry and will be happy to arrange an individual viewing appointment with you.

Location

The well-kept 1-3 family house is situated in an unobstructable panoramic location in the upper part of Triberg in the central Black Forest and offers various grocery stores and shops to cover daily needs.
grocery stores and stores. Basic medical care is ensured by medical practices and a pharmacy.
There are several kindergartens and all types of schools. A wide range of restaurants, the outdoor pool, fitness studios, cultural events, the event cinema and numerous clubs complete the offer. The house in an idyllic location, with beautiful views, surrounded by nature and yet close to the city center, thus offers a high quality of life and living.
The region has many leisure and sports facilities to offer. For example, there are walking and hiking trails, mountain bike trails and cross-country ski trails in the immediate vicinity. Triberg is known for the highest waterfalls in Germany and the Black Forest Railway.
The regional center Villingen-Schwenningen can be reached in 20 minutes, Freiburg in 60 minutes.

Enquiry

* Mandatory data
 encrypted via SSL

Note: Some of the texts on this page have been translated automatically. The German version of these texts is binding.