Charmantes 3-Parteienhaus mit Garten in begehrter Lage von Schorndorf

73614 Schorndorf, Mehrfamilienhaus zum Kauf

Referenz

Dieses Objekt wurde bereits erfolgreich vermittelt.

Objekt­beschreibung

Beschreibung

Herzlich Willkommen in Ihrem neuen Zuhause oder Investmentobjekt! Dieses gepflegte 3-Parteienhaus befindet sich in einer ruhigen und attraktiven Lage unweit der Innenstadt. Es bietet viel Raum zur Selbstverwirklichung – sei es als Mehrgenerationenhaus, Kapitalanlage oder zur Eigennutzung mit Vermietungspotenzial.

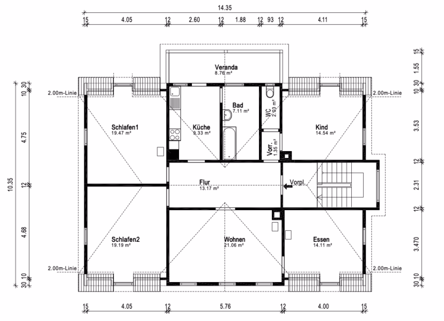
Das Haus besticht durch eine durchdachte Raumaufteilung und einen großzügigen Garten, der allen Parteien zur Verfügung steht.

Jede Wohnung ist einzeln nutzbar, hell und freundlich geschnitten, jeweils mit eigener Loggia die über die einzelnen Küchen erreichbar ist.
Man betritt die Wohnung jeweils über den zentralen Flur. Sie verfügen über je fünf Zimmer, Küche, Bad und Loggia.

Der Dachboden bietet Potenzial zum Ausbau, und somit Schaffung von zusätzlichem Wohnraum.
Zudem ist das Haus voll unterkellert.

Ausstattung

In der EG Wohnung wurde erst kürzlich das Bad komplett saniert.
In allen Wohnungen wurden größtenteils im Jahre 2011 die Fenster erneuert.

Die Ausbaupläne und die Vorbereitung zum Glasfaseranschluss sind abgeschlossen.

Alle 3 Wohneinheiten verfügen über eine Loggia

Der sehr großzügige Dachboden ist bislang nicht ausgebaut, verfügt über das Treppenhaus aber über einen attraktiven Zugang.

Sonstiges

Mieten:

EG: KM 985,00€ + BK 1120,00€ (MV seit 2020)
1.OG: KM 615,00 € + BK 70,00 € (MV seit 1987)
DG: KM 505,00 € + 80,00 € (MV seit 1987)

Mieteinnahmen insgesamt KM 2.105,00 €
Die Mieten wurden 2024 und 2025 erhöht.

Baujahre Etagenheizungen:
EG 2003
OG 2006
DG 2014
Hinweis: Aus Rücksicht auf den Wunsch der aktuellen Mieter, keine Fotos ihrer persönlichen Einrichtung online zu zeigen, wurde die Wohnung eigens für die Vermarktung gestaged. Die abgebildete Möblierung dient ausschließlich zur Veranschaulichung der Raumaufteilung.

Lage

Schorndorf zählt zu den beliebtesten Städten im Rems-Murr-Kreis - mit hervorragender Infrastruktur, reizvoller Altstadt, guter Anbindung nach Stuttgart ( S-Bahn Anschluss ) und einer hohen Lebensqualität mit dem Nahegelegenen Schurwald und den vielen natürlichen Badeseen.
Schorndorf ist die Geburtsstadt Gottlieb Daimlers, und beherbergt viele Kulturelle Sehenswürdigkeiten.